Boliger Lavenergi
Hareleddet, Stenløse Syd
| Type | Bolig, Offentlig bygning, Bebyggelsesplan |
|---|---|
| Bygherre | KAB |
| Status | Opført, 2008 |
| Team | Christian Tranberg, Charlotte Christine Tranberg, Mark Kjellman Hansen |
| Samarbejde | JDL Boligbyg A/S |

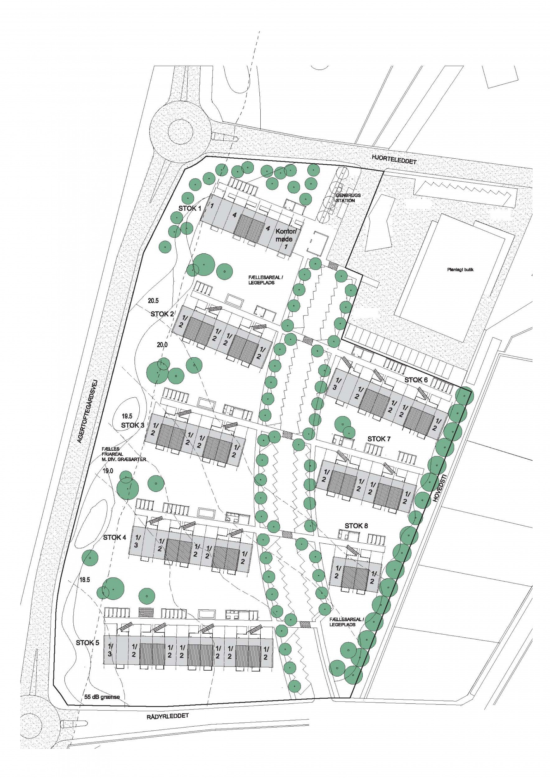
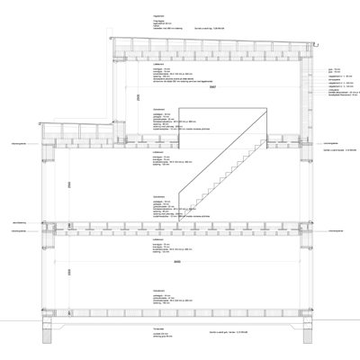
Boligbebyggelsen består af 66 lavenergi boliger fordelt i otte boligstokke. Hver stok er sammensat af præfabrikerede volumener opført i 1, 2 og 3 etager.


De åbne affalds- og cykelskure er udført i cedertræ og er placeret i de grønne pauser i mellem boligstokkene.


Boligstokkene er indrettet med 2 rumsboliger i et plan og 3 rums boliger i to plan. Dette bidrager til variation i facade og bygning.


De mørkegrå facadeplader står i kontrast til de rå aluminiums vinduesrammer.

