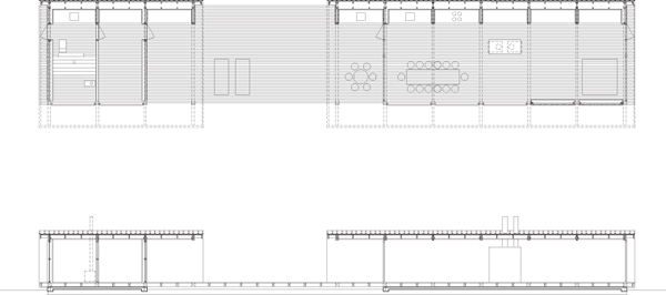
Arkitektens eget Sommerhus
Tingsryd Ørmo, Sverige
| Type | Bolig |
|---|---|
| Bygherre | Privat |
| Status | Opført, 2010 |
| Areal | 117 |
| Team | Christian Tranberg, Charlotte Christine Tranberg |

Arkitektens eget sommerhus - tegnet og bygget selv


En enkel foldning med en pause imellem



Stengærdet viser vejen. Resten kommer af sig selv.


Stedet er det vigtigste. Udsigt, sol/skygge, læ/vind. Naturen skal ind i alle rum og blandes med indretning og opholds-nicher.




Udsigten og stien fra søen drukner i natur.



Glasfacaderne kan skærmes af med løse trælameller, hvis det ønskes.

