1. Præmie - Christian den IV´s Bryghus
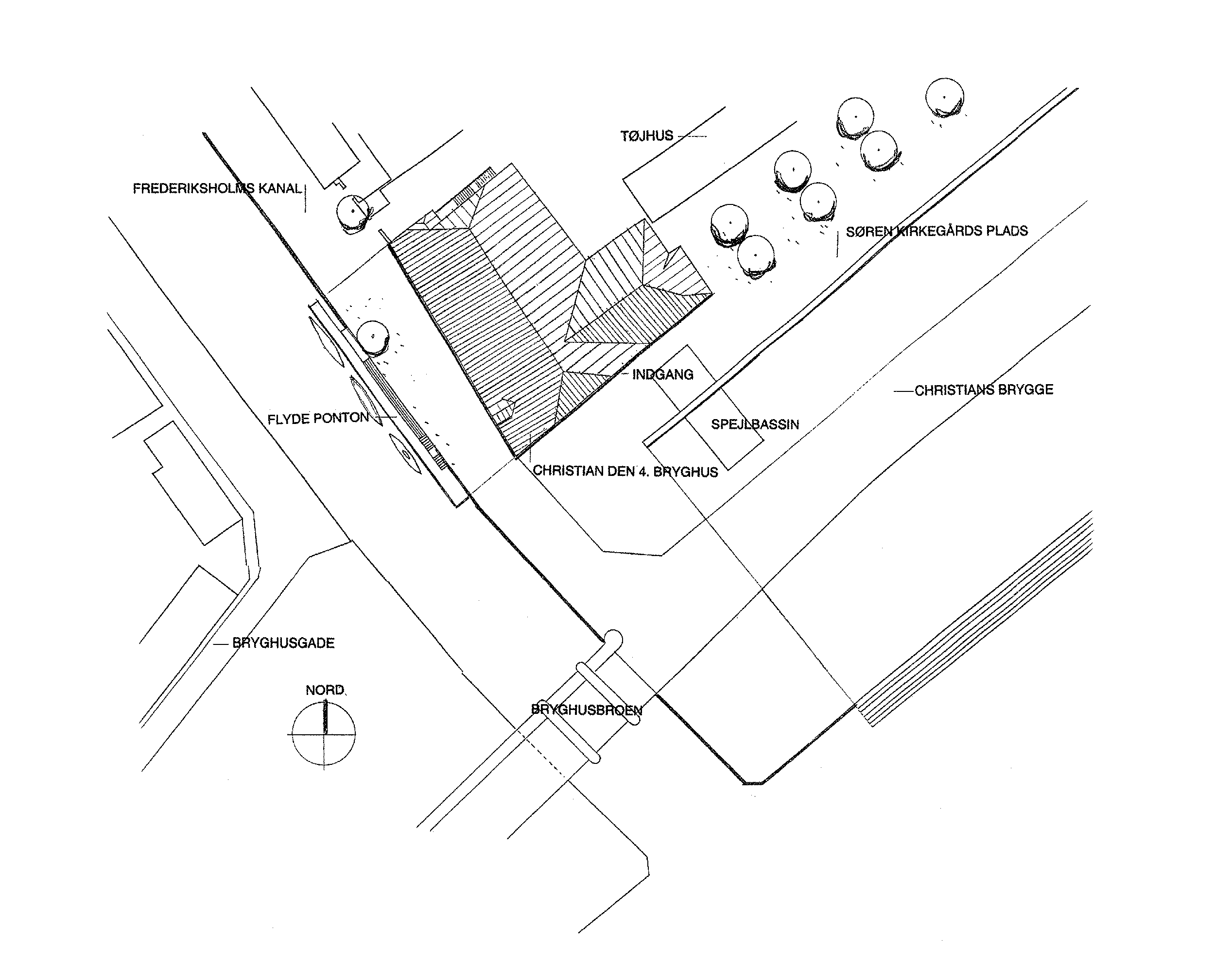
Søren Kirkegaards Plads, København
| Type | Erhverv, Kultur, Offentlig bygning, Renovering, Konkurrence |
|---|---|
| Bygherre | Slots- og Ejendomsstyrelsen |
| Status | Konkurrence, 2001 |
| Team | Christian Tranberg, Mark Kjellman Hansen |

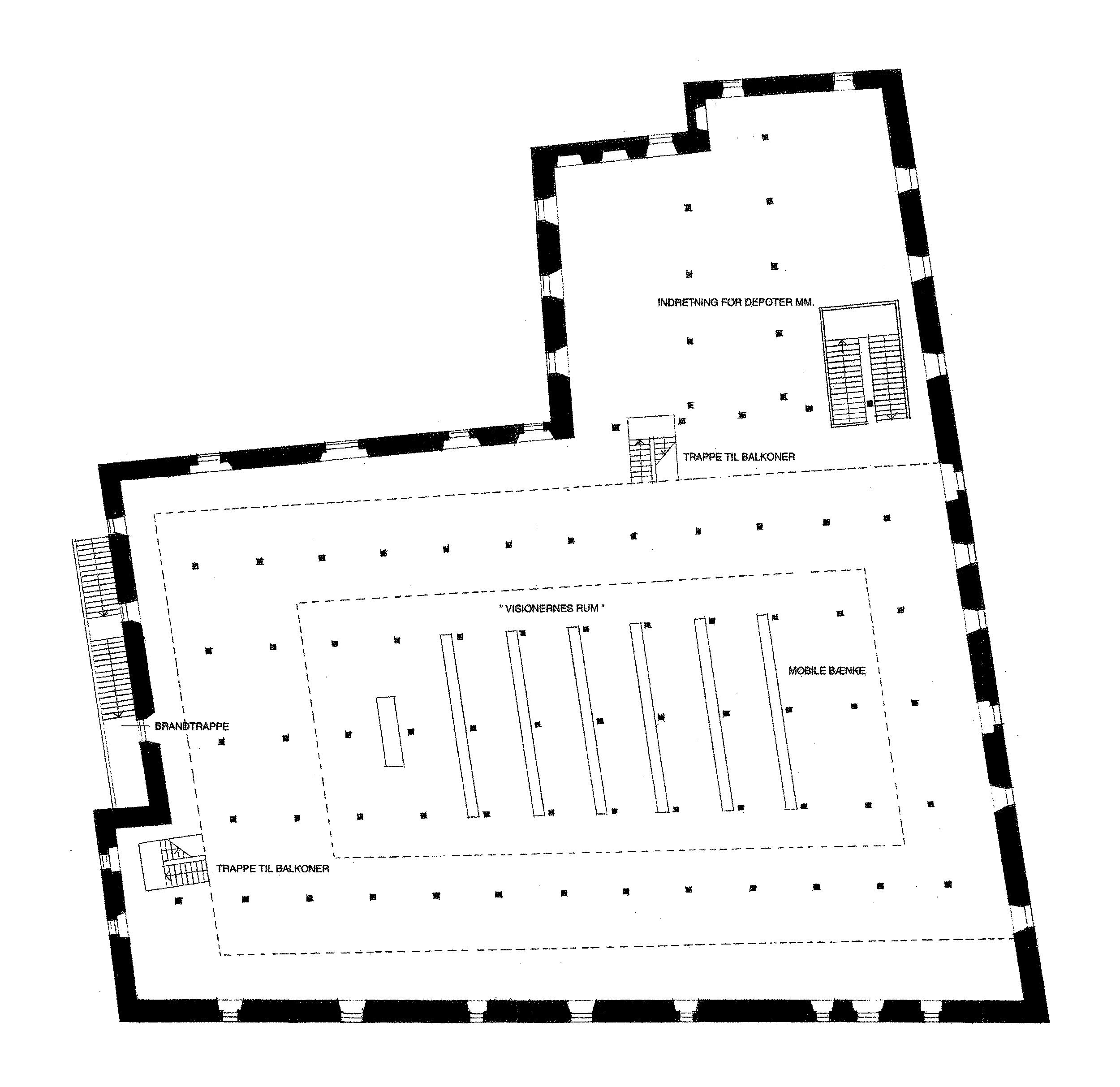
"Visionernes hus" - En katedral midt i København.
En fornem 1. præmie i denne smukke idékonkurrence.


Forelæsninger, foredrag, ro- og kajakklub. Et storslående historisk rum i byen, der ophøjes med sport, vand og visdom.



Respekt og anerkendelse af den eksisterende kvalitet. Underbygge de unikke materialer og bevare stoflighedens og proportionernes skønhed.

